|
Понравился проект? Поделись с друзьями:
 
Рабочий Проект.
Одноэтажный жилой дом с мансардным этажом по адресу: ЯНАО, Тазовский р-н
Раздел -АС.
Размер архива: 8.34 Mb
Чертежи в формате: PDF
Состав проектно-сметной документации (44 листа):
-АС Архитектурно-строительные решения
Технико-экономические показатели проекта:
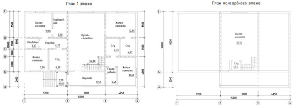
Этажность, эт. - 1 + мансарда
Общая площадь дома - 150,37 м2
Авторы: ООО «Слобода-выгодный дом»
Конструктивные решения:
Фундамент - свайно-винтовой
Несущие стены дома - из SIP-панелей 224 мм, с облицовкой фасада панелями "под кирпич"
Перегородки - из SIP-панелей 174 и 124 мм
Перекрытия - из SIP-панелей 224 мм
Крыша - мансардная, деревянные стропильные конструкции.
Кровля - Металлочерепица "Монтеррей"
Окна - ПВХ с двойным остеклением.


|