|
Понравился проект? Поделись с друзьями:

Рабочий Проект.
Одноэтажный каркасный жилой дом, размером в плане 8,86 х 8,64 м.
Разделы -АР, -КЖ, -КД.
Размер архива: 10.84 Mb
Чертежи в формате: PDF
Состав проектно-сметной документации (38 листов):
- АР Архитектурные решения (11 листов)
- КЖ Конструкции железобетонные (7 листов)
- КД Конструкции деревянные (20 листов)
Технико-экономические показатели здания:
Этажность, эт. - 1
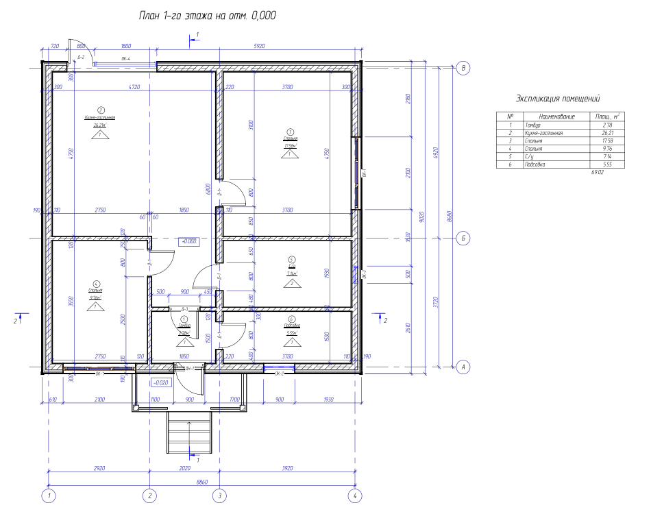
Жилая площадь, м2 - 40,44
Общая площадь дома, м2 - 69,02
Строительный объём, м3 - 304,5
Площадь застройки, м2 - 87,0
Размеры в осях, м - 8,86 х 8,64
Архитектурно - конструктивные решения:
Фундамент - монолитные, ленточные, мелкого заглубления.
Наружные стены - каркас деревянный сеч. 50х150 мм с обшивкой плитой ОСП; наружная декоративная обшивка, внутренняя - обшивка ГКЛ. Утеплитель - минеральная вата 200 мм.
Внутренние несущие стены - каркас деревянный сеч. 50х150 мм, с обшивкой ГКЛ.
Перекрытия - по деревянным балкам.
Кровля - двускатная, деревянная стропильная система с покрытием металлочерепицей.
Окна и двери - индивидуального изготовления, должны иметь минимально допустимое сопротивление теплопроводности Rq min, которое должно соответствовать требованиям для данного района.Наружные двери - утепленные.
Архитектурно - планировочные решения:
Здание одноэтажное. В плане здание имеет прямоугольную форму. Кровля двускатная. Размеры в осях - 8,86 х 8,64 м. Высота помещений 1-го этажа - 2,8 м. Высота 1-го этажа - 3,1 м. Верхняя отметка кровли - +6,33 м. За проектную отметку ±0.000 принята отметка чистого пола 1-го этажа.
План дома:

Внешний вид дома:

|