|
Понравился проект? Поделись с друзьями:

Рабочий проект. Деревянный дом из оцилиндрованного бревна ∅240 мм
Разделы -АР, -КД.
Размер архива: 12.75 Mb
Чертежи в формате: PDF
Состав проектно-сметной документации:
- АР Архитектурные решения
- КД Конструкции деревянные
Технико-экономические показатели здания:
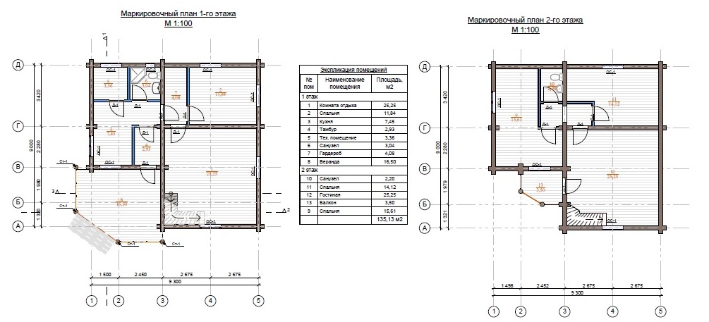
Здание в плане размером по осям 9,3 х 9 м.
Здание двухэтажное с высотой этажа 2,7 м.
Общая площадь, м2 135,13
Площадь застройки - 83,7 м2
Строительный объем: 669,6 м3
Архитектурно - конструктивные решения:
1. Фундамент - Мелкозаглубленный ленточный или свайно-ростверочный.
1.2. Гидроизоляция: боковая - обмазочная битумной мастикой (по ГОСТ 30693-2000), горизонтальная - оклеечная двумя слоями рубероида РПП-300 (по ГОСТ 10923-93) на битумной мастике.
2. Несущие конструкции
2.1. Стены: из оцилиндрованного бревна диаметром 240 мм по ГОСТ 8486-86. Пиломатериалы хвойных пород.
2.2. Стропильная система: из бруса 50х150 мм по ГОСТ 8486-86. Пиломатериалы хвойных пород. Обрешетка брус 50х50 мм через 300 мм.
2.3. Перекрытия: по балкам из бруса 100х200 через 650 мм по ГОСТ 8486-86 Пиломатериалы хвойных пород.
3 Ограждающие конструкции
3.1 Стены: оцилиндрованное бревно 240 мм.
3.1 Покрытие кровли: металлочерепица по ГОСТ 24045-94 с полимерным покрытием по ГОСТ 30246-94.
3.4. Заполнение проемов окон - металлопластиковые 2-х камерные стеклопакеты.
3.5. Заполнение проемов дверей: наружные - металлические, внутренние - деревянные.
4. Перегородки: каркасные с утеплителем.
5. Полы - 1 этаж- дощатые, 2 этаж- дощатые.
6. Наружная отделка - стены - покрытие декоративным антисептирующим составом типа "Пинотекс", "Биотекс", "Сенеж", "Белинка".
7. Утеплитель - минераловатные плиты согласно ГОСТ 16381-77* типа ISOVER или ROCKWOOL

Планы:

|