скачать чертежи
Приветствую Вас, Гость · Лента новостей rss сайта www.proektiy-domov.ruIRSS скачать бесплатно проект коттеджа 04.12.2025, 09:56
чертежи домовЧертежи проектов домов и коттеджей, программы и литература
WWW.PROEKTIY-DOMOV.RU
Бесплатные проекты домов
Чертежи и проекты
Чертежи и проекты в формате AutoCAD, PDF
  • www.Proektiy-Domov.ru Проекты домов
Проекты домов и коттеджей
Форма входа

Меню сайта









Категории раздела
Чертежи кирпичных и каменных домов [167]
Чертежи деревянных домов [40]
Чертежи каркасных домов [54]
Чертежи комбинированных домов [5]
Типовые проекты [8]
Курсовые и Дипломные проекты коттеджей [16]
Каталоги готовых проектов [10]

Статистика

Онлайн всего: 2
Гостей: 2
Пользователей: 0

WWW.PROEKTIY-DOMOV.RU 

www.Proektiy-Domov.ru Проекты домов Проекты домов и коттеджей
скачать бесплатно чертежи
Жилой дом с мансардой и со стенами из рубленного бревна

26.02.2014, 07:36
проект садового домика бесплатно
Понравился проект? Поделись с друзьями:


Рабочий Проект. Жилой дом с мансардой и со стенами из рубленного бревна


Размер архива: 1.23 Mb
Чертежи в формате: AutoCAD (DWG)

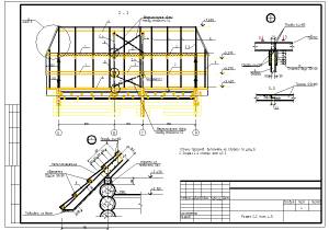
Состав проектно-сметной документации:
-АР Архитектурные решения (фасады, планы, разрезы)
-КД Конструкции деревянные (устройство крыши)

Архитектурно - конструктивные решения:
Фундамент - буронабивные сваи с монолитным железобетонным ростверком.
Стены - рубленное бревно
Перекрытия - деревянные
Крыша - мансардная утеплённая, деревянные стропильные конструкции. Обрешетка устраивается из брусков 50х50 с шагом 350 мм.
Кровля - металлочерепица.
 
Примеры чертежей из проекта:

 
чертёжи мансарды
Категория: Чертежи деревянных домов | Добавил: Admin | Теги: бревно, DWG, рабочий проект, мансарда, AutoCAD, чертежи, Двухэтажный, Сруб
Просмотров: 6652 | Загрузок: 1823 | Рейтинг: 5.0/38

Внимание Для типовых проектов домов может потребоваться корректировка конструкций стен, кровли и фундамента с учетом геологических особенностей Вашего участка и климатического пояса. Внимание
Всего комментариев: 0
Добавлять комментарии могут только зарегистрированные пользователи.
[ Регистрация | Вход ]


Copyright MyCorp © 2025 Бесплатные проекты коттеджей
проектирование частных домов и коттеджей
Рейтинг@Mail.ru Яндекс цитирования
Бесплатные программы для проектирования домов и коттеджей
%