|
Понравился проект? Поделись с друзьями:

Рабочий Проект.
Двухэтажный жилой дом с подвалом по ул.Чапаева, 81 в г.Тирасполе
Раздел -АС.
Размер архива: 6.79 Mb
Чертежи в формате:
Вариант 1: в AutoCAD (DWG)
Вариант 2: в ArchiCAD (PLN)
Состав проектно-сметной документации (21 лист):
-АС Архитектурно-строительные решения
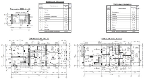
Технико-экономические показатели здания:
Этажность, эт. - подвал + 2
Жилая площадь, м2 - 57,73
Общая площадь дома, м2 - 243,06
Строительный объём, м3 - 1290
Площадь застройки, м2 - 171,58
Размеры в осях, м - 20,3 х 7,6
Гараж - есть
Конструктивные решения:
- Фундаменты - ленточные из монолитного ж/бетона.
- Стены - из пильных блоков известника на ц/п р-ре М50 с монолитными элементами усиления в виде монолитных колонн.
- Лестничные марши - монолитные.
- Перегородки - кладка из пустотелого глиняного кирпича на ц/п растворе М50.
- Перекрытия - сборные из пустотных плит и монолитных участков; по балкам.
- В плоскости плит перекрытий запроектирован антисейсмический обвязочный пояс.
- Несущие конструкции кровли - деревянные стропила.
- Покрытие кровли - металлочерепица по деревянным конструкциям.
- В отделке здания применены современные материалы - полимерные штукатурки, подвесные потолки, витражи и окна из двойного стеклопакета в металлопластиковом профиле.
- Конструкцию пола и отделочные работы выполнять после оборудования строения приборами и коммуникациями водоснабжения, канализации, электроснабжения, отопления, вентиляции и кондиционирования.
Планы этажей:

|