|
Понравился проект? Поделись с друзьями:

  
Рабочий проект.
Проект жилого дома с мансардой и подвалом.
Раздел -АС.
Размер архива: 27.37 Mb
Чертежи в формате:
Вариант-1: в ArchiCAD 18 (PLA)
Вариант-2: в PDF
Состав проектно-сметной документации (33 листа):
- АС Архитектурно-Строительные решения
Технико-экономические показатели:
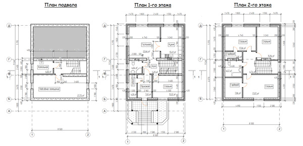
Этажность, эт. - подвал + 2
Общая площадь, м2 - 183,27
Жилая площадь, м2 - 96,63
Площадь застройки, м2 - 104,42
Строительный объём, м3 - 937,12
Автор: архитектор Андрей Колюк
Конструктивные решения:
Фундаменты - блоки ФБС по монолитной бетонной подушке.
Наружные стены - многослойная кладка из блоков "Бетонит" (бетонные блоки 200х200х400 мм), теплоизоляция и облицовка облицовочным керамическим кирпичом.
Внутренние стены - кирпичные
Перегородки - кирпичные
Перекрытия - сборные железобетонные панели по серии 1.141-1-2 вып. 63 и монолитные участки.
Крыша - мансардная утеплённая (150 мм), с деревянной стропильной частью.
Кровля - из гибкой черепицы по ОСП 9 мм и обрешётке.
Внутренние лестницы - по металлическим косоурам с деревянными ступенями.
Архитектурно-планировочные решения:
Простейший жилой дом с мансардным и цокольным этажами. Несмотря на отсутствие архитектурных изысков, дом отличается компактной планировкой с грамотным расположением инженерного оборудования. Мансардный этаж можно легко трансформировать в полноценный второй этаж, увеличив высоту здания во время строительства.

  
|