|
Понравился проект? Поделись с друзьями:

  
Рабочий проект.
Индивидуальный жилой дом в д.Петрухино (МО).
Раздел -АС.
Размер архива: 4.64 Mb
Чертежи в формате: PDF
Состав проектно-сметной документации (37 листов):
-АС Архитектурно-строительные решения
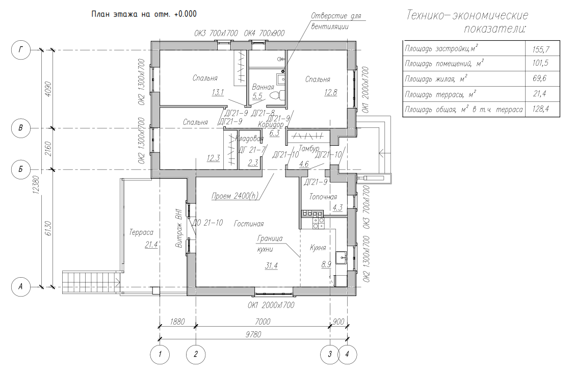
Технико-экономические показатели:
Этажность, эт. - 1
Общая площадь, с учётом террасы и крыльца, м2 - 128,4
Общая площадь, без учёта террасы и крыльца, м2 - 101,5
Жилая площадь, м2 - 69,6
Площадь застройки, м2 - 155,7
Габариты дома в осях, без учёта террасы и крыльца, м - 9,78 x 12,38
Авторы: ООО АПМ «АРХМАСТЕР»
Конструктивные решения:
• Фундамент - свайно-ростверковый.
• Цокольное перекрытие - монолитная Ж/Б плита по грунту
• Наружные стены - 460 мм: -газобетонные блоки D400 (600х400х250 мм), -утеплитель, экструзионный пенополистерол (50 мм),-тонкостенная штукатурка (10 мм).
• Внутренние стены - газобетонные блоки.
• Перегородки - газобетонные блоки (100 мм) и полнотелый кирпич (120 мм).
• Перекрытие чердачное - по деревянным балкам с утеплением.
• Крыша - четырёхскатная, с холодным чердаком.
• Кровля - металлочерепица.

|