|
Понравился проект? Поделись с друзьями:

Рабочий проект.
Двухэтажный жилой дом с чердаком в д.Синьково, СНТ "Импульс"
Раздел -АС.
Размер архива: 10.42 Mb
Чертежи в формате: PDF
Состав проектно-сметной документации (37 листов):
-АС Архитектурно-строительные решения
Технико-экономические показатели:
Этажность, эт. - 2 + чердак
Общая площадь, м2 - 353,11
Жилая площадь, м2 - 139,84
Площадь застройки, м2 - 195,02
Габаритные размеры - 14,87х15,19 м с учетом террас, входных групп
Размеры в осях - 12,25х12,25 м, без учета террас и входных групп
Авторы: Строительная компания "НОВОТИМ", Архитектор: Гардер С.В.
Конструктивные решения:
Фундаменты - свайно-ростверковый.
Наружные стены - Керамический поризованный блок 440х250х219 мм. с маркой прочности М100 и морозостойкостью F50. Наружная отделка стен здания выполняется лицевым кирпичом КЕЛПу 1НФ/150/2,0/50/ГОСТ 530-2007.
Внутренние стены - перегородок и внутренних несущих стен выполнить из керамического кирпича КОРПо 1НФ/100/2,0/50/ГОСТ 530-2007 на цементно-песчаном растворе М100.
Под каналы дымохода - кладка из керамического огнеупорного кирпича.
Полы первого этажа - фундаментная монолитная ж.б. плита.
Межэтажное перекрытие - монолитная ж.б. плита.
Чердачное перекрытие - монолитная ж.б. плита.
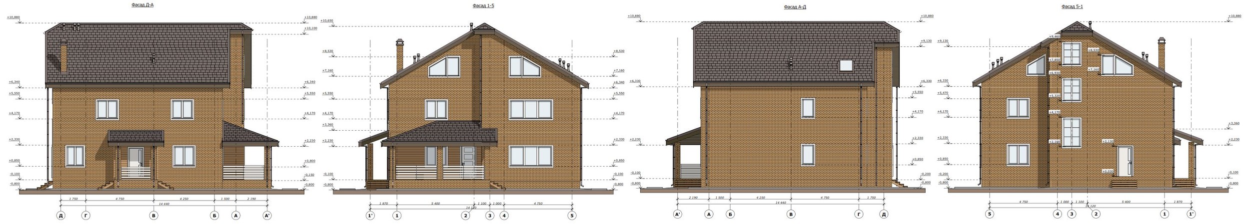
Кровля - двускатная, покрытие - мягкая черепица.
Перемычки - ж. б. монолитные.
Площадка входной группы, терраса, пандус - монолитные железобетонные.
Оконные блоки - дерево алюминиевые, теплошумозащитные с 2-камерными стеклопакетами, профиль белого цвета.
Дверные блоки: наружные - металлические утепленные, внутренние - деревянные по ГОСТ 6629-88.
Отмостка - бетонная толщ. 30 мм с уклоном 3 % по щебеночной основанию толщиной 10-15 см.
Архитектурно-планировочные решения:
Проектируемое здание: двухэтажное, сложной формы в плане объем с двухскатной кровлей, бесподвальное, с террасой. Размеры в осях: 12,25х12,25 м, без учета террас и входных групп. Здание имеет - вход со стороны западного фасада, и выход на террасу со стороны южного фасада, котельная оборудованна отдельным входом с северного фасада.
На первом этаже расположены: тамбур, кухня, гардеробная, котельная, сан.узлы, холл, лестничный холл, спальня, кладовая, гостиная.
На втором этаже расположены: Спальные комнаты, гардеробные, сан.узлы, кладовая.
Размещение водомерного узла, газового отопительного котла предполагается в помещении котельной. Размещение электрощитовой под лестницей первого этажа.


|