|
Понравился проект? Поделись с друзьями:

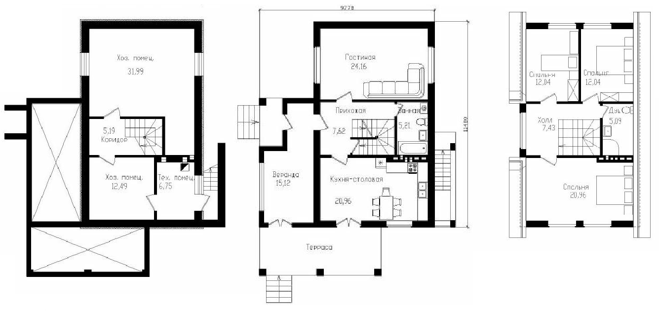
Рабочий Проект. Мансардный жилой дом из газосиликатных блоков (проект № 187-Г-23)
Разделы -АР, -КР.
Размер архива: 10.39 Mb
Чертежи в формате: PDF
Состав проектно-сметной документации (37 листов):
-АР Архитектурные решения
-КР Конструктивные решения
Технико-экономические показатели здания:
Этажность, эт. - цокольный этаж + 1 + мансарда
Количество квартир, шт. - 1
Общая площадь дома, м2 - 187,06
Жилая площадь дома, м2 - 92,20
Площадь застройки, м2 - 128,06
Строительный обьем, м3 - 927,70
Конструктивные решения:
Фундамент - ленточный, сборный из блоков ФБС.
Цоколь - кирпичная кладка
Перекрытия - из сборных железобетонных панелей с круглыми пустотами толщиной 220 мм по серии 1.141-1 вып. 60,63
Наружные стены - кладка из газосиликатных блоков с наружним утеплением
Внутренние несущие стены - кирпичная кладка
Перегородки - гипсокартон по металлическому каркасу
Крыша - мансардная, двухскатная с деревянной стропильной системой
Покрытие кровли - металлочерепица "Монтеррей"
Оконные блоки - пластиковые с 2-х камерными стеклопакетами

|