|
Понравился проект? Поделись с друзьями:

Рабочий Проект.
Блочный дом с мансардой МП-330, площадью 148,35 м2
Разделы -АР, -КР.
Размер архива: 15.85 Mb
Чертежи в формате: PDF
Состав проектно-сметной документации (53 листа):
– АР Архитектурные решения
– КР Конструктивные решения
Технико-экономические показатели проекта:
Этажность - подвал + 1 + мансарда
Общая площадь - 148,35 м2
Жилая площадь - 77,76 м2
Площадь застройки - 114,6 м2
Строительный объем - 844,31 м3
в том числе:
подземная часть - 45,78 м3
надземная часть - 798, 53 м3
Авторы: ООО "Монтос-Дом"
Конструктивные решения:
Фундаменты - сваино-ростверковый (на буронабивных сваях), подвальная часть - монолит
Стены несущие наружние - газобетонные блоки HEBEL или пенобетонные блоки
Внутренние несущие стены - газобетонные блоки HEBEL или пенобетонные блоки
Внутренние перегородки - газобетонные блоки HEBEL или пенобетонные блоки
Перекрытия - монолитные ж/б
Окна - ПВХ, двойной стеклопакет
Вентканалы - кирпич полнотелый
Крыша - мансардная, система стропил
Кровля - металлочерепица
Внешняя отделка дома - кирпич облицовочный
Цоколь - натуральный камень или плитка под натуральный камень
Водосток с кровли осуществляется посредством водосборных лотков, устраиваемых снаружи по нижнему краю кровли
Архитектурно-планировочное решение:
Современный и уютный жилой загородный дом с мансардой для постоянного проживания 4-5 человек.
В цокольном этаже (подвале) под помещением кухни первого этажа находится кладовая, площадь кладовой 14,3 м2.
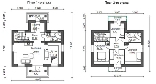
На первом этаже располагаются: кухня, гостиная, ванная комната и холл.
На втором этаже представлены помещения: холл, четыре спальни, две из которых с выходом на балконы.
Подвал и первый этаж соединены между собой стремянной лестницей. Первый и второй этажи соединены между собой деревянной лестницей.
Отметка ±0.000 соответствует отметке чистого пола первого этажа. Отметка второго этажа 3,100. Мансардный этаж - подкровельная высота 1500 мм.
Планы этажей:

Фасады дома:

|