|
Понравился проект? Поделись с друзьями:

Рабочий проект.
Проект дома №56-16 (Вариант без цокольного этажа)
Разделы -АС, -ОВ, -ВК, -ЭОМ.
Размер архива: 23.66 Mb
Чертежи в формате: PDF
Состав проектно-сметной документации (85 листов):
– АС Архитектурно-строительные решения
– ОВ Отопление и вентиляция
– ВК Водоснабжение и канализация
– ЭОМ Внутренние сети Электроснабжения и электроосвещения
Технико-экономические показатели:
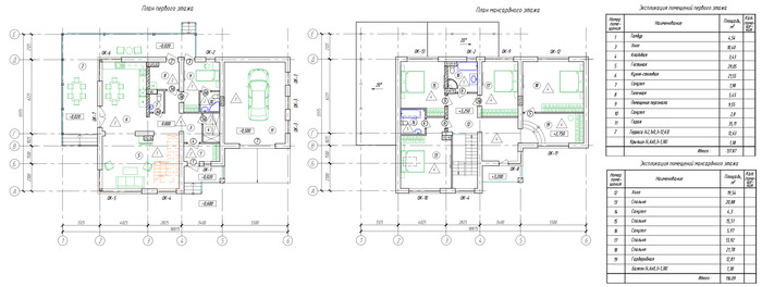
Этажность - 2 этажа
Общая площадь — 253,96 м2
Жилая площадь — 113,95 м2
Площадь застройки - 203,4 м2
Размеры дома в плане, по осям - 18,875 х 13,175 м
Гараж - есть
Авторы: ООО «Астра»
Конструктивные решения:
• Фундамент - монолитная ж/б плита б=300 мм;
• Наружные стены - газобетонные блоки б=375 мм;
• Перегородки - газобетонные блоки б=100 мм;
• Перекрытие - монолитная ж/б плита;
• Кровля - мансардная двухскатная;
• Покрытие кровли - металлочерепица по деревянным стропилам;
• Лестница - деревянная;
• Наружная отделка здания - штукатурка с покраской и декоративный камень.

   
|