|
Понравился проект? Поделись с друзьями:

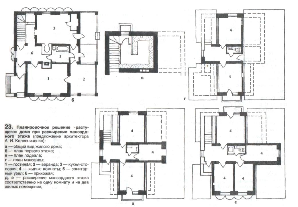
Типовой проект 184-000-382.86
Одноквартирный мансардный 3х-комнатный жилой дом из местных материалов с печным отоплением для индивидуальных застройщиков.
Разделы -АС, -ОВ, -ВК, -ЭО, -СС.
Размер архива: 13.91 Mb
Чертежи в формате: PDF (сканы листов проекта)
Состав проектно-сметной документации (50 листов):
Альбом I. Архитектурно-строительные, санитарно-технические и электротехнические комплекты.
-АС Архитектурно-строительные решения
-ОВ Отопление и вентиляция.
-ВК Водоснабжение и канализация.
-ЭО Электротехнические решения
-СС Связь и сигнализация
Альбом II. Сметы.Ведомости потребности в материалах.-отсутствует
Альбом III. Спецификация оборудования.-отсутствует
Технико-экономические показатели здания:
Этажность, эт. - 1 + мансарда
Количество квартир, шт. - 1
Количество жилых комнат, шт. - 3
Общая площадь дома, м2 - 83,7
Жилая площадь дома, м2 - 43,1
Площадь застройки, м2 – 137,8
Архитектурно-конструктивные решения:
Фундаменты - ленточные, бутобетонные
Стены - облегчённая кладка из обыкновенного глинянного кирпича.
Перегородки - кирпичные 120 мм.
Перекрытия - по деревянным балкам
Крыша - деревянные стропильные конструкции
Кровля - волнистые асбестоцементные листы
Окна - с двойным остеклением, переплеты раздельные
Полы - утеплённые дощатые, линолеум, в санузлах - керамическая плитка

|