|
Понравился проект? Поделись с друзьями:
+
 
 


Стоимость доступа к скачиванию: 200 руб.
Размер архива: 8.71 Mb
Чертежи в формате: PDF
Состав проектно-сметной документации (56 страниц):
– АР Архитектурные решения
– КР Конструктивные решения
– ОВ, ВК Отопление, водоснабжение, канализация
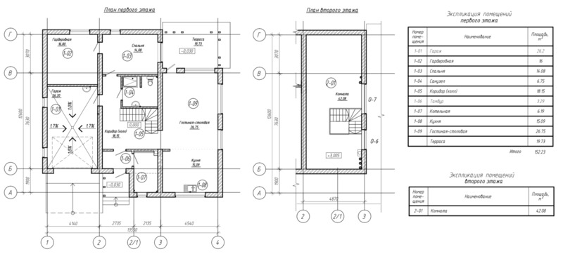
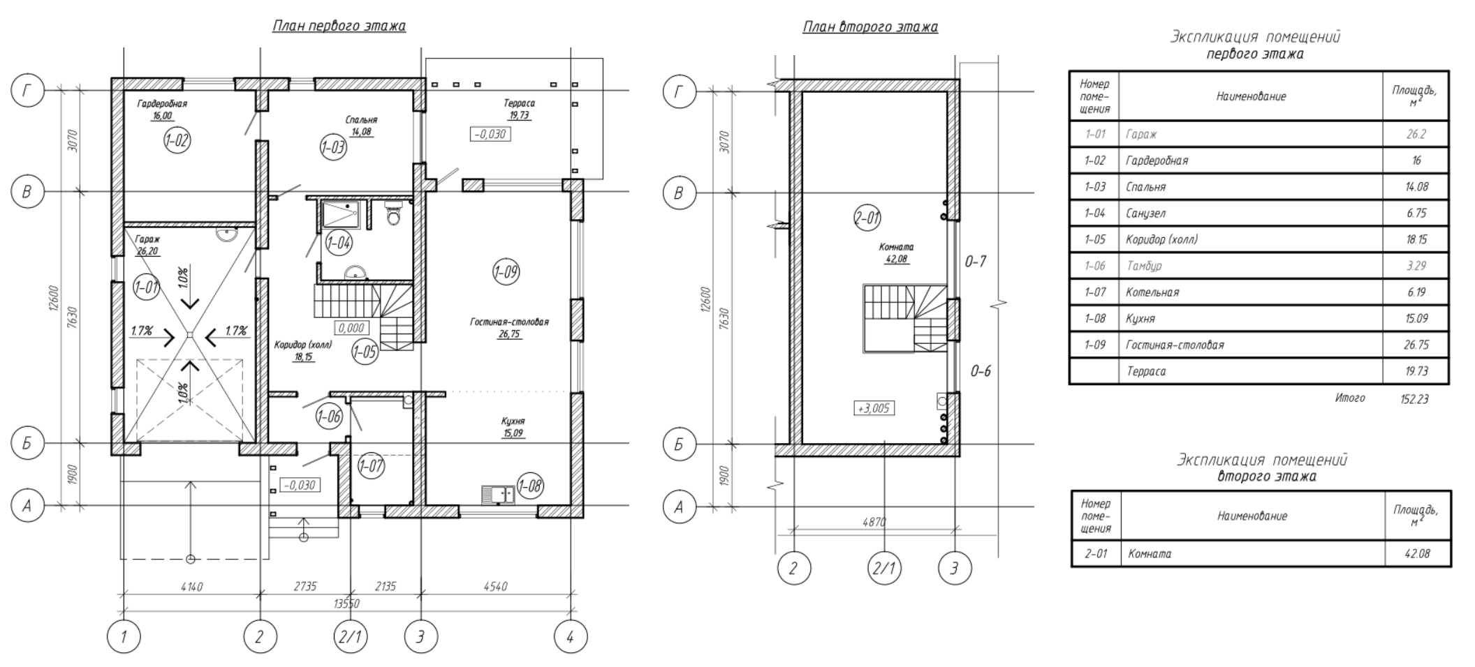
Технико-экономические показатели:
Этажность, эт. - 2
Общая площадь здания (теплый контур) - 174,58 м2
Общая площадь здания (в т.ч. терраса 19,73 м2) - 194,31 м2
Площадь застройки - 186,9 м2
Габаритные размеры дома по осям- 13.55 х 12.60 м.
Конструктивные решения:
1. Здание - двухэтажное. Размеры в плане в осях 1-4 - 13.55 м, в осях А-Г - 12.60 м. Сообщение между этажами осуществляется по внутренней лестнице.
2. Основные конструкции и материалы:
* несущие стены здания: газобетонные блоки YTONG D400-375 мм;
* перегородки: газобетонные блоки YTONG D500-150 мм, полнотелый керамический кирпич М150 - 120 мм;
* перекрытие - деревянные двутавровые балки ICJ с заполнением каркаса из балок;
* кровля: скатная с покрытием из панелей Кликфальц Pro Line 0,5 Quarzit lite с пленкой на замках RR 32 темно-коричневый. Крыша мансардная. Утепление совмещённое в конструкии крыши;
* облицовка цоколь: декоративная штукатурка;
* облицовочный слой стен: декоративная штукатурка, планкен деревянный.
|